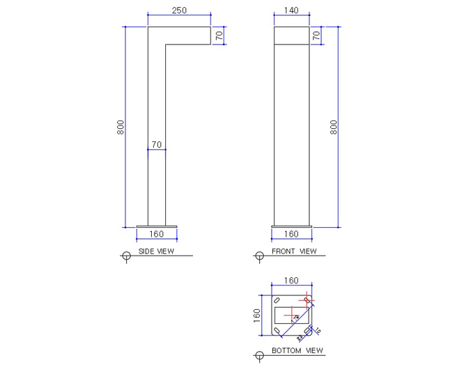
Á¦Ç°¸í : LEDÀܵðµî, º¼¶óµåµî, Á¤¿øµî Á¦Ç°¹øÈ£ : RB LS4001-8 Á¦Ç°Å©±â : W140 D250 H800 ¿ëµµ : LEDÀܵðµî, º¼¶óµåµî, Á¤¿øµîÀ¸·Î »ç¿ë , °æ°ü¿ë
MATERIAL : ALUMINIUM FINISH : POLYESTER POWDER COATING DIFFUSER : POLYCARBONATE LAMP : LED 15W ¡¾ COLOR : WHITE , WARM WHITE(±âº») VOLTAGE : AC110~240V / DCV
WEIGHT : 3.7 KG ºÒºû ¹æÇâ : ÇÏÇâ (¡Øµî±â±¸ »ö»ó, Ä¡¼ö µî »ç¾çÀÌ Á¶±Ý ´Ù¸¦ ¼ö ÀÖ½À´Ï´Ù)
* DCV : SMPSº°µµ / * ¾ÓÄ« : ÇùÀÇ * µµ¸é , »çÁø 

|