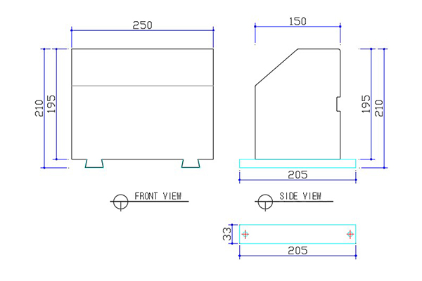
¡Ø ¸ðµç ³»¿ëÀº ´Þ¶óÁú ¼ö ÀÖ½À´Ï´Ù. Á¦Ç°¸í : LED¿¬¼®, °æ°è¼® Á¦Ç°¹øÈ£ : RB BR63D Àü¾Ð : DC12V Àü·Â : 6W »ö¿Âµµ : ÁÖ±¤»ö (ºÒºû : ÇÏ¿ì¡ »ö»ó¿¡ µû¸§) Ä¡¼ö : W250 D210 H150(ºê¶óÄÏ Á¦¿Ü) mm (µµ¸é Âü°í) ÀçÁú : ÇÃ¶ó½ºÆ½ & etc SMPS(POWER SUPPLY) : º°µµ * °íÁ¤ : ÇùÀÇ * ¿ëµµ : ÇÃ¶ó½ºÆ½ ¿¬¼®, °æ°è¼®, ÁÖÂ÷ºí·Ï, Ä« ½ºÅäÆÛ (Car Stopper), Á¶¸³½Ä °æ°è¼® & etc 

|